Property Display

TWO ADJOINING FREEHOLD TITLES - 2001SQM - BUY ONE OR BOTH!

Property Description

TWO ADJOINING FREEHOLD TITLES - 2001SQM - BUY ONE OR BOTH!

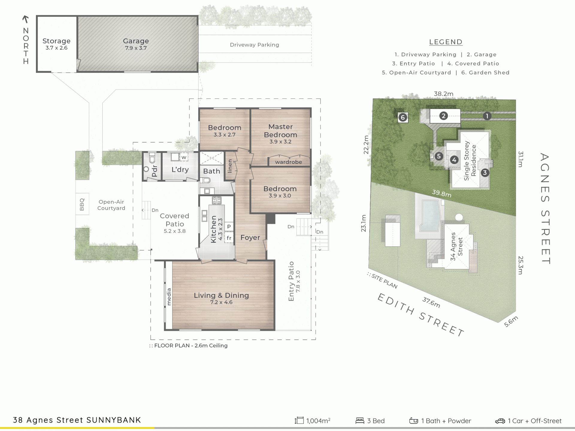
This is an incredible large-scale land investment situated in the heart of Sunnybank! We are proud to present to market, these two neighbouring freehold title blocks along Agnes Street. Together they offer 2001sqm prime land ready for redevelopment, being 997sqm and 1004sqm respectively. Our vendor is prepared to sell these as a package together or will consider selling each property separately.

It’ truly is an outstanding opportunity for a developer or residential home builder to secure a huge combined land parcel in this prime location. Removing the existing homes, each individual block could have a huge, new modern home designed and built for resale or you could rebuild to move in one and sell off the other. Alternatively, (STCA) you could apply for a DA to combine the blocks, sub-divide and/or construct a multi-residential complex on this sprawling 2001sqm block.

Currently each property has a neatly presented, highly rentable weatherboard designed three bedroom, one bathroom home occupying the land. These tidy premises provide instant income to the new owners, which is great while you’re in planning phase.

34 Agnes is located on the corner of Edith Street. It is 997sqm with 25m frontage to one side and dual street entry on Edith Street in excess of 37m. No. 38 comprises 1004sqm with 31m frontage.

This 5-star location offers walkability to all key amenities including:
- Local train station and bus stops for city bound services
- Pinelands Plaza shopping centre
- Runcorn State Primary School
- Shops on Gowan Road
- Nearby playing fields and recreational centres
- Short 5 minute drive to Market Square
- Few minutes to Gateway motorway entry

The tender closes on 24th July 2021 at 4pm. We urge all serious buyers to contact us for further details and to arrange a walk around the blocks / property inspection to grasp the true scale and potential this opportunity presents.

**All information contained herein is gathered from sources we consider to be reliable. However, we cannot guarantee or give any warranty about the information provided and interested parties must solely rely on their own enquiries**

House Features

General Features
  • Bedroom: 6
  • Bathrooms: 2
  • Garaging: 4
  • Land Size: 2001 m2
Map Location ( get directions )

34 & 38 Agnes Street, Sunnybank, Queensland 4109